*** Information on this webpage is subject to change. Changes / updates are identified with red and date of last update. It is advisable to check back to this page frequently for the latest information until the end of the meet. ***
2026 Ontario Age Groups

Information, Heat/Psych Sheets and Live Results
| Dates | Meet Package |
Session Information |
Heat Sheets |
Live Results |
| Mar 5-8, 2026
|
Meet Package - Jan28
|
Psych Sheet Schedule of Sessions
Session Summary
|
Thu AM (Junior) Thu Finals (Junior) Fri AM (Junior) Fri PM (Youth) Fri Finals (Junior) Sat AM (Junior) Sat PM (Youth) Sat Finals (Junior) Sun AM (Junior) Sun PM (Youth) Sun Finals (Junior) |
|
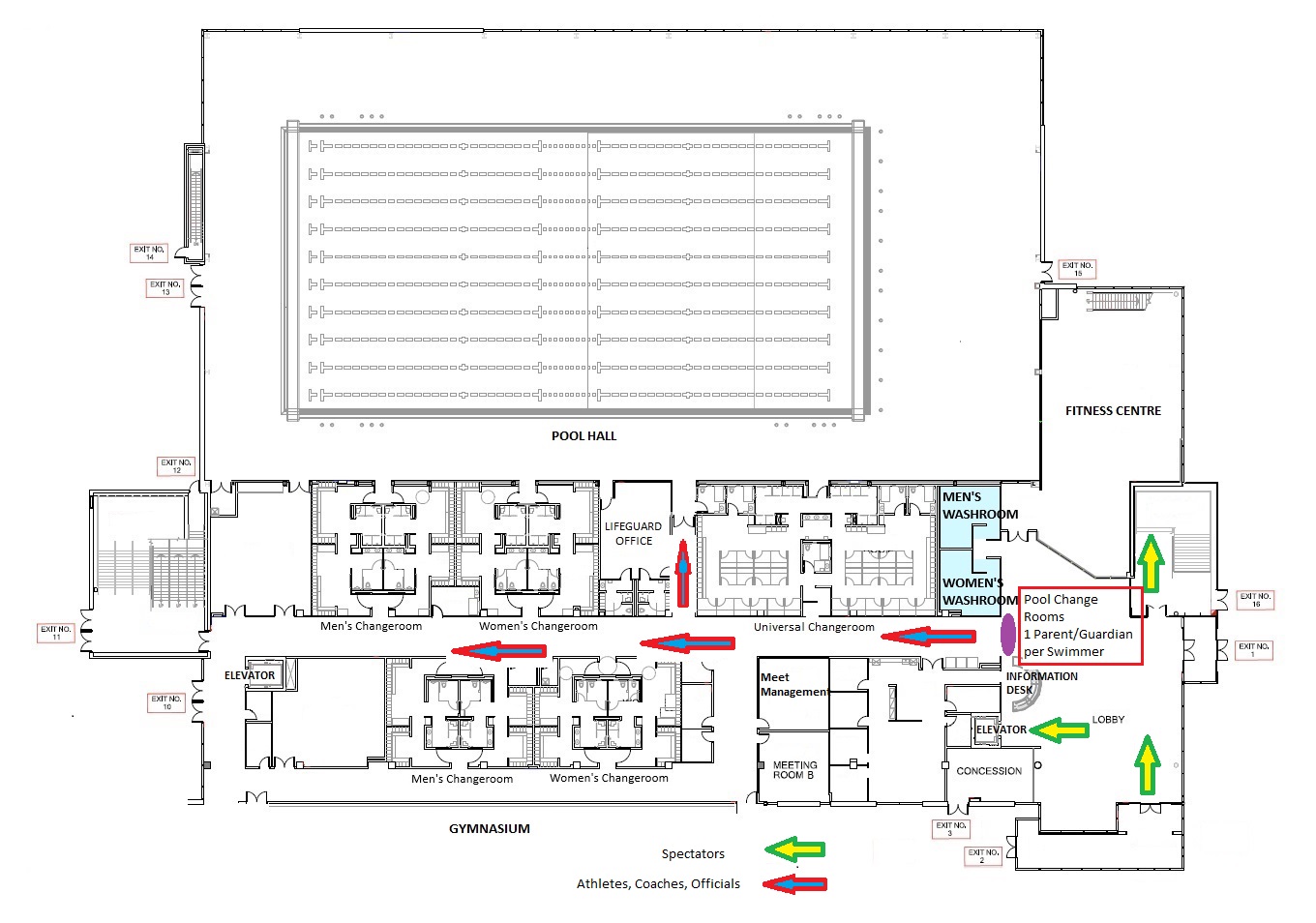
Participant Information for all:
- ONLY Athletes, Coaches & Working Officials in Session are permitted on the pool deck. (All Spectators are to watch from the second floor viewing gallery.)
- No spectators permitted on pool deck.
-
There will be MPAC Change Room Support Staff who will be responsible for monitoring the change spaces and on the pool to ensure cleanliness. They will be enforcing no food and no eating policies on deck and in change rooms.
- Participants are reminded that there is to be no food or eating on deck during the event. This includes glass containers. Eating is permitted in the front lobby, pool stands or in any rooms available as designated by event organizers. Please ensure you clean up after yourself and dispose of all waste in available receptacles.
- Event organizers and Coaches from all attending clubs will support in directing traffic on the pool deck.
> All attending Clubs for 12U sessions recommended to have a club coach greet their athletes at the change room entrances and directing athletes where to go on deck upon athletes arrival at start of session.
> It is encouraged for clubs to bring banners or table cloths to put on the front of the coaches tables on the north side of the pool deck to help guide swimmers where to go.
|
||||
Vendor Info
| Fine Design | - Thursday, Friday and Saturday at the Lobby of MPAC |
| - Thursday, Friday, Saturday and Sunday in Multipurpose Room 3 |
|
| |
- If you are using "Meet Mobile", filter for City = Unionville to find the meet, not Markham |
Facilities Info
Markham PAN AM Centre
16 Main Street Unionville ON L3R 2E5 [ Map ]
MPAC Weekend Parking and Additional Parking Map:

Food & Drink Info
We encourage you to bring snacks and a refillable water bottle.
Use Destination Markham's website that provides a searchable list based on your current geolocation to search for restaurants, food, shopping and other attractions in Markham.
Meet Mobile