Colburn Park Pool Design - Please attend the October 7th Green Bay City Council
Hello Everyone,
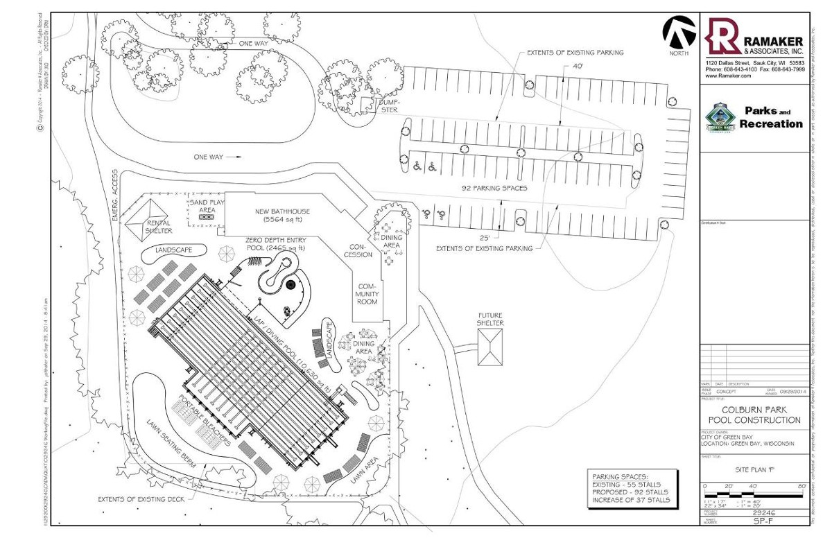
Here is the approved design for the new Colburn Park Pool.
Please plan to attend the Tuesday, October 7th Green Bay City Council meeting at 7pm to show your support for this project.
Thanks
Coach Dave


